Velkommen til Blikkenslager Butikken.
Det skal være enkelt.
I butikken skal du forvente å finne de fleste produkter blikkenslagere kan levere og vi leverer over hele landet. Noen produkter kan være forbeholdt enkelt steder, men de fleste kan leveres rett til ditt prosjekt eller hjem på døren din. Vi har et sterkt samarbeid med produsenter og leverandører over hele Norge.
Butikkens priser er veiledende, pluss frakt. Vi har mulighet til å gi prosjekt og kvantumsrabatter. Og firma kan inngå kjøpsavtaler med oss.
**TIPS**
Når du skal kjøpe flere ulike produkter kan det være oversiktlig å greit og velge 1 stk. av hvert produkt, og så justerer du antallet til slutt i handlekurven.
Populære produkter
Typegodkjent stigetrinn tilpasset tak tekket med profilerte takplater. Benyttes sammen med innfesteskinne I-125.
Passer til Kami Plegel enkeltkrum.
Betjeningspanel med tilgang til alle funksjoner
Forhåndskonfigurerte brukermoduser
Full tilgang til alle funksjoner
Viser aktive funksjoner...
Flatt påstikk med stor raide BDEA-5
USR+K (FG) Passer til plenumskammer
125mm Renne skjøt i Aluminium
Plenumskammer for ventil DN75/125
Leveres i 3 meter lengder. Husk å velg dimensjon.
30 Grader Bend BDEB bygget/presset - Galvanisert stål
N-85 Grenrør. Benyttes for å samle 2 nedløp til et dreneringspunkt.
N-85mm Nedløpsrør. Leveres i 3 meter lengder
VM zink nedløpsrør i blank natur. Leveres i 3 meters lengder
EI60S Manuelt brannspjeld med smeltesikring
T-120mm Rennevinkel Utvendig 90 grader
Leveres i 2,5 meters lengder, men kan leveres i lengder opp til 8 meter
Armat TP 45 er en sterk takprofil som passer for ulike hus, forretnings- og industribygg. Utformingen...
Mønekam for armat takplater. Leveres i 2.15 meters lengder. Laget i plast
PAROC Hvac Lamella Mat AluCoat er en ubrennbar steinull for varme- og kondensisolering av ventilasjonskanaler og utstyr. Den har et yttersjikt av armert aluminiumsfolie....
N-70 sveist kne. Bygger mindre enn vanlig bend
Mittet leverer høykvalitets lydfelleplater til bruk for lydisolasjon, både i ventilasjonskomponenter og til bedring av akustikk på din arbeidsplass. Mattene leveres i flere...
Overgang / Fordeler fra spiro kanal, til F-tube kanaler /ventiler.
Rennevinkel for utvendig hjørne 90grader
100mm Trakt med bend 75gr
VentiWrap er selvulkaniserende duk til kledning av teknisk isolasjon utendørs. Et godt alternativ til kapsling av isolerte kanaler ute/inne.
Mittet syntetisk lamellmatte benyttes til kondens- og termisk isolering av ventilasjonskanaler. Isolasjonen er produsert av miljøvennlige lameller av polyesterrull som er...
Plannja Trend 275 er et lett montert tak uten synlige skruer.
Pris på forespørsel. Se fargevalg
Flatt avstikk med netting BDEA- 6-10. Galvanisert stål
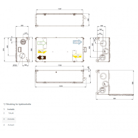
SAVE VTR 500 passer for boliger med ventilert areal opp til ca. 400 m2. SAVE VTR 500 leveres i hvitlakkert, dobbeltmantlet og isolert utførelse, komplett med automatikk og...
Rett lyddemper med 50 mm steinullsfyll. Lyddemperen består av et rør av perforert plate omsluttet av gavel og mantel av galvanisert stål. Rommet mellom rør og mantel er fylt...
120mm takrenne 4 meter lengder
Energieffektive boligaggregat med roterende varmegjenvinner spesielt tilpasset himlingsmontasje. For boliger opp til ca. 100 m².
120mm Rennkrok for sidefeste (for eksempel i drageren).
Pris pr stk, og leveres i hele lengder på 2.5 meter. Produktet er laget plastisol plate, og i mange fine farger. Skriv inn ønsket farge Tilkuttet max 41 cm
Snøfanger system konsoll SN R-640 passer blant annet til Rydab Ambassadør. REF 104141
Snøfanger 2 rørs. Benyttes sammen med snøfanger konsoll med integrert klype.
Villavent SAVE VSR 300 passer for boliger med ventilert areal opp til ca. 240 m2
Aggregatet leveres i dobbeltmantlet, isolert utførelse, og er komplett utstyrt med...
Alle produkter